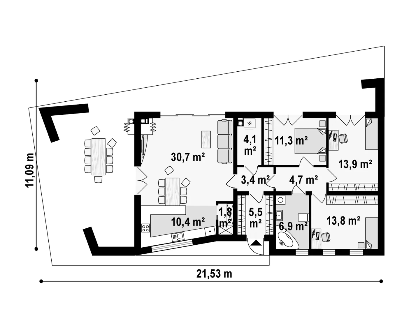
Maja projektid

Siin on esitatud valikud valmisprojektide kohta. Võite tellida nii etapiviisilise ehituse kui ka täislahenduse „võtmed kätte“ – lisaks on võimalik teha muudatusi nii planeeringutes kui ka välisilmes.

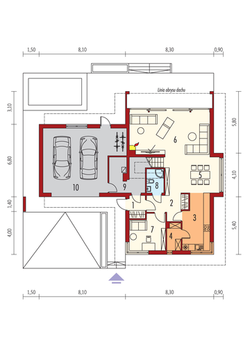
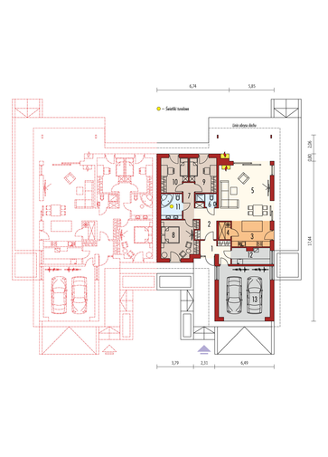
MJ140

Projekti Tehnilised Andmed

Kasulik pind 151.74 m²
Netopind 204.06 m²
Maja mõõtmed 12.34 x 26.64 m
Krundi mõõtmed 20.34 x 35.54 m
Kõrgus 6.96 m
Kubatuur 574.08 m³
Katusekalle 25°
Katuse pindala 350 m²
Planeeringut saab alati kohandada vastavalt teie soovidele ja vajadustele.

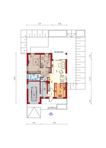
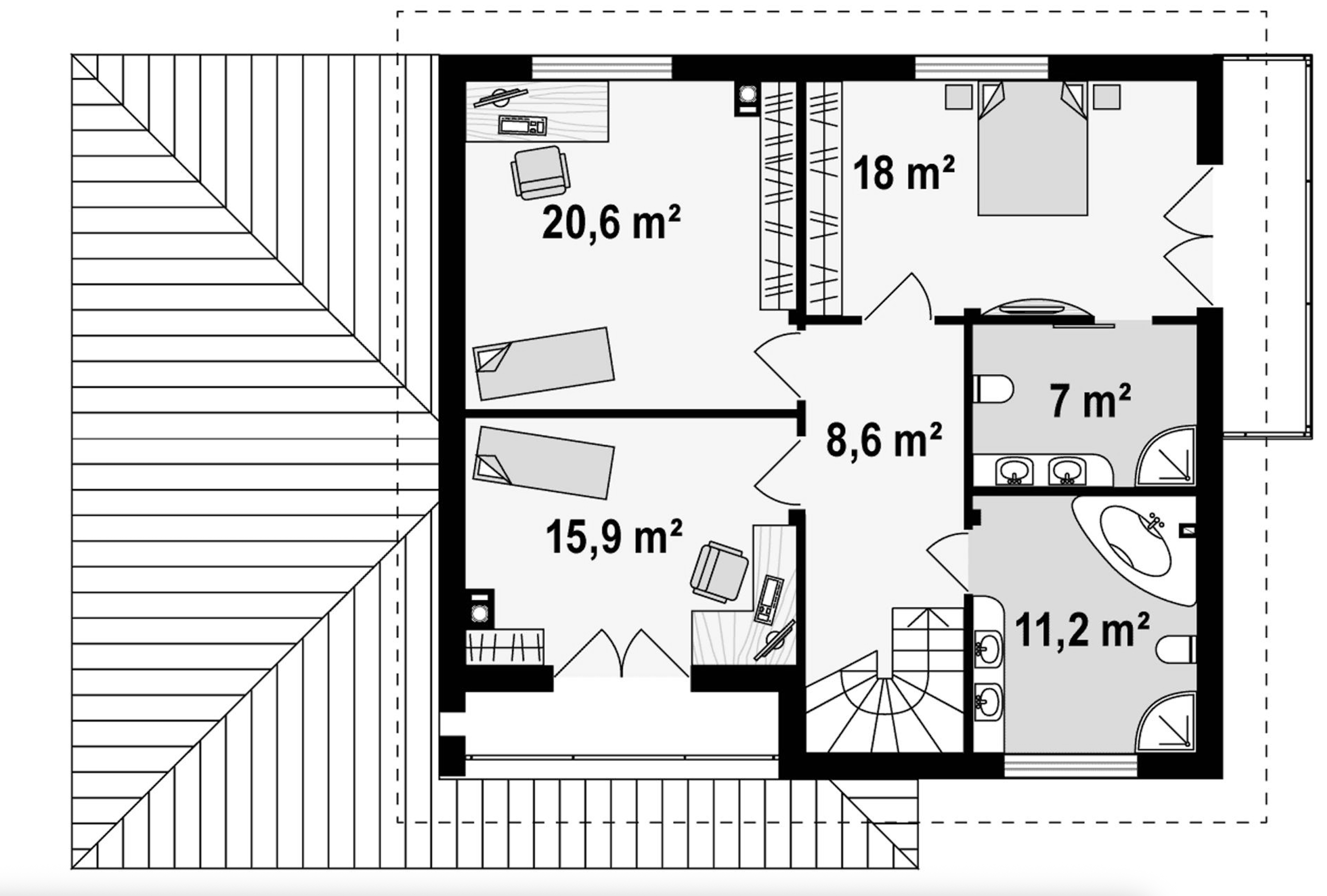
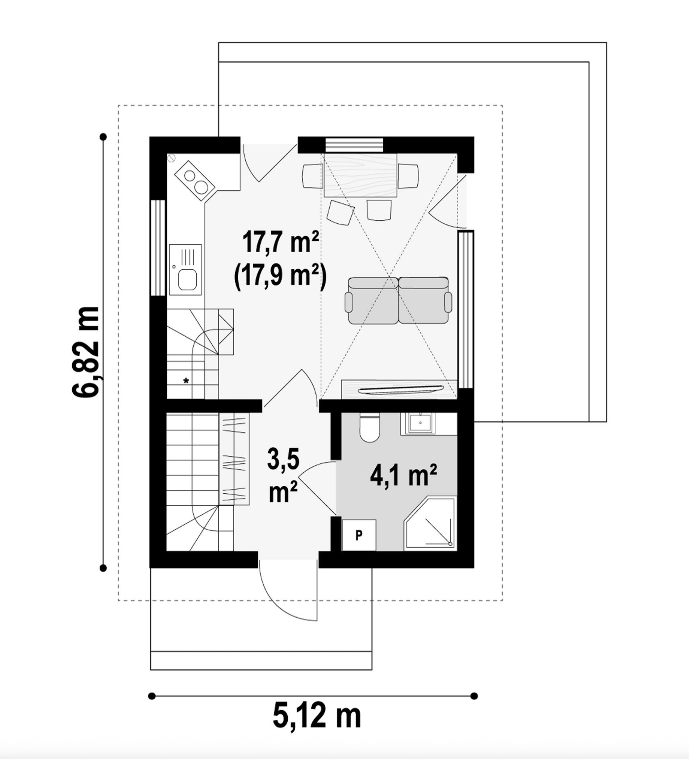
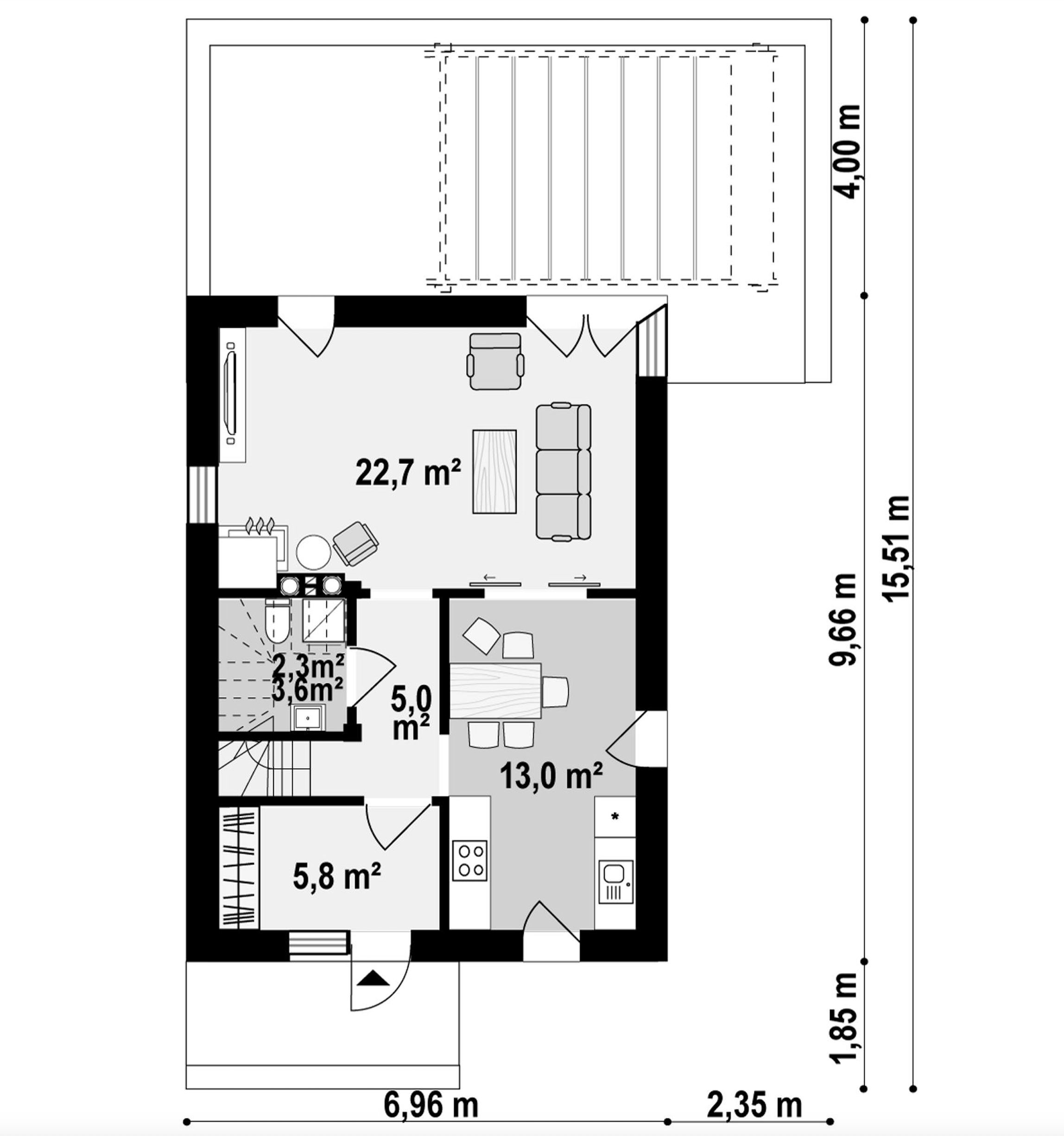
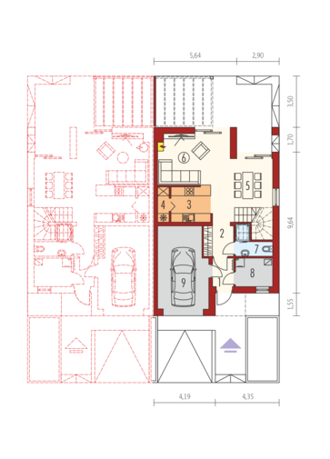
MJ141

Projekti Tehnilised Andmed

Kasulik pind 112.31 m²
Netopind 157.80 m²
Maja mõõtmed 12.79 x 20.30 m
Krundi mõõtmed 20.79 x 26.55 m
Kõrgus 6.57 m
Kubatuur 443.43 m³
Katusekalle 25°
Katuse pindala 278 m²
Planeeringut saab alati kohandada vastavalt teie soovidele ja vajadustele.

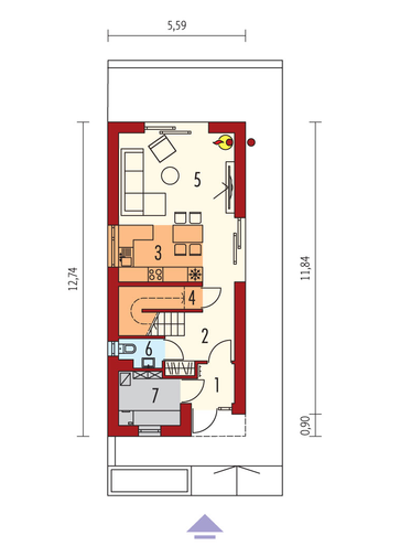
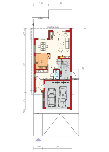
MJ142

Projekti Tehnilised Andmed

Kasulik pind 93.64 m²
Netopind 128.17 m²
Maja mõõtmed 13.84 x 10.94 m
Krundi mõõtmed 21.84 x 18.94 m
Kõrgus 4.09 m
Kubatuur 335.64 m³
Katusekalle 2°
Katuse pindala 128 m²
Planeeringut saab alati kohandada vastavalt teie soovidele ja vajadustele.

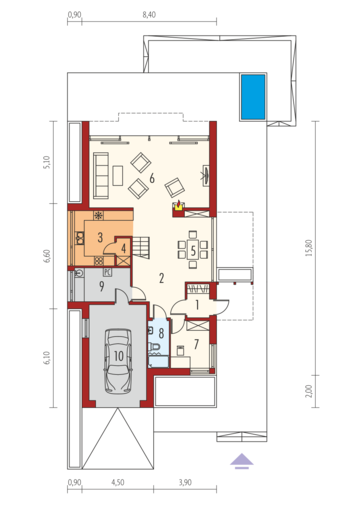
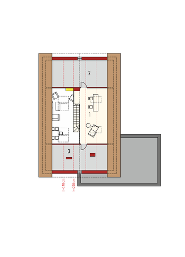
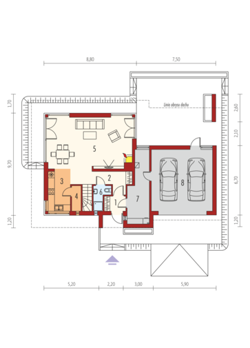
MJ60

Projekti Tehnilised Andmed

Kasulik pind 181.85 m²
Netopind 229.96 m²
Maja mõõtmed 9.30 × 17.80 m
Krundi mõõtmed 17.30 × 25.70 m
Kõrgus 7.59 m
Kubatuur 614.56 m³
Katusekalle 2°
Katuse pindala 117 m²
Planeeringut saab alati kohandada vastavalt teie soovidele ja vajadustele.

MJ143

Projekti Tehnilised Andmed

Kasulik pind 86.52 m²
Netopind 96.40 m²
Maja mõõtmed 13.24 x 9.64 m
Krundi mõõtmed 21.24 x 17.64 m
Kõrgus 6.36 m
Kubatuur 258.35 m³
Katusekalle 30°
Katuse pindala 187 m²
Planeeringut saab alati kohandada vastavalt teie soovidele ja vajadustele.

MJ144

Projekti Tehnilised Andmed

Kasulik pind 147.61 m²
Netopind 193.94 m²
Maja mõõtmed 12.64 x 22.64 m
Krundi mõõtmed 20.64 x 30.64 m
Kõrgus 4.10 m
Kubatuur 544.94 m³
Katusekalle 2°
Katuse pindala 265 m²
Planeeringut saab alati kohandada vastavalt teie soovidele ja vajadustele.

MJ63

Projekti Tehnilised Andmed

Kasulik pind 122.65 m²
Netopind 204.80 m²
Maja mõõtmed 16.30 × 12.60 m
Krundi mõõtmed 23.30 × 20.60 m
Kõrgus 8.72 m
Kubatuur 529.06 m³
Katusekalle 22°
Katuse pindala 201 m²
Planeeringut saab alati kohandada vastavalt teie soovidele ja vajadustele.

MJ64

Projekti Tehnilised Andmed

Kasulik pind 120.67 m²
Netopind 149.51 m²
Maja mõõtmed 7.10 × 13.00 m
Krundi mõõtmed 15.10 x 19.80 m
Kõrgus 7.66 m
Kubatuur 458.78 m³
Katusekalle 20°
Katuse pindala 0 m²
Planeeringut saab alati kohandada vastavalt teie soovidele ja vajadustele.

MJ10

Projekti Tehnilised Andmed

Kasulik pind 109.11 m²
Netopind 122.41 m²
Maja mõõtmed 12.44 x 13.84 m
Krundi mõõtmed 20.44 x 19.84 m
Kõrgus 6.77 m
Kubatuur 343.98 m³
Katusekalle 25°
Katuse pindala 195 m²
Planeeringut saab alati kohandada vastavalt teie soovidele ja vajadustele.

MJ11

Projekti Tehnilised Andmed

Kasulik pind 99.34 m²
Netopind 111.86 m²
Maja mõõtmed 13.74 × 12.09 m
Krundi mõõtmed 20.74 × 20.09 m
Kõrgus 6.80 m
Kubatuur 314.33 m³
Katusekalle 30°
Katuse pindala 172 m²
Planeeringut saab alati kohandada vastavalt teie soovidele ja vajadustele.

MJ12

Projekti Tehnilised Andmed

Kasulik pind 46.96 m²
Netopind 50.65 m²
Maja mõõtmed 8.29 × 8.29 m
Krundi mõõtmed 16.29 × 16.29 m
Kõrgus 5.69 m
Kubatuur 135.70 м³
Katusekalle 30°
Katuse pindala 111 m²
Planeeringut saab alati kohandada vastavalt teie soovidele ja vajadustele.

MJ13

Projekti Tehnilised Andmed

Kasulik pind 56.78 m²
Netopind 64.73 m²
Maja mõõtmed 9.40 × 9.00 m
Krundi mõõtmed 17.40 × 17.00 m
Kõrgus 6.29 m
Kubatuur 181.90 m³
Katusekalle 30°
Katuse pindala 119 m²
Planeeringut saab alati kohandada vastavalt teie soovidele ja vajadustele.

MJ14

Projekti Tehnilised Andmed

Kasulik pind 68.40 m²
Netopind 98.16 m²
Maja mõõtmed 13.28 × 11.28 m
Krundi mõõtmed 20.28 × 19.28 m
Kõrgus 6.90 m
Kubatuur 263.42 m³
Katusekalle 30°
Katuse pindala 208 m²
Planeeringut saab alati kohandada vastavalt teie soovidele ja vajadustele.

MJ15

Projekti Tehnilised Andmed

Kasulik pind 135.12 m²
Netopind 179.79 m²
Maja mõõtmed 11.79 × 23.69 m
Krundi mõõtmed 19.79 × 31.19 m
Kubatuur 556.60 m³
Katusekalle 27°
Katuse pindala 252 m²
Planeeringut saab alati kohandada vastavalt teie soovidele ja vajadustele.

MJ16

Projekti Tehnilised Andmed

Kasulik pind 155.62 m²
Netopind 225.86 m²
Maja mõõtmed 14.24 x 23.59 m
Krundi mõõtmed 22.24 x 31.59 m
Kõrgus 7.11 m
Kubatuur 632.10 m³
Katusekalle 25°
Katuse pindala 374 m²
Planeeringut saab alati kohandada vastavalt teie soovidele ja vajadustele.

MJ17

Projekti Tehnilised Andmed

Kasulik pind 126.16 m²
Netopind 176.70 m²
Maja mõõtmed 13.54 x 20.35 m
Krundi mõõtmed 21.54 x 26.35 m
Kõrgus 6.94 m
Kubatuur 496.53 m³
Katusekalle 25°
Katuse pindala 298 m²
Planeeringut saab alati kohandada vastavalt teie soovidele ja vajadustele.

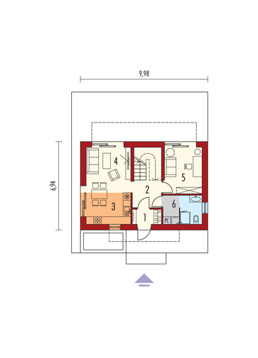
MJ70

Projekti Tehnilised Andmed

Kasulik pind 77.83 m²
Netopind 101.06 m²
Maja mõõtmed 9.98 × 6.94 m
Krundi mõõtmed 17.98 × 16.94 m
Kõrgus 8.04 m
Kubatuur 275.85 m³
Katusekalle 45°
Katuse pindala 94 m²
Planeeringut saab alati kohandada vastavalt teie soovidele ja vajadustele.

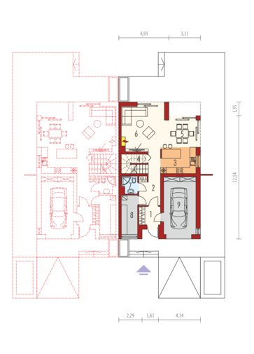
MJ62

Projekti Tehnilised Andmed

Kasulik pind 216.58 m²
Netopind 319.10 m²
Maja mõõtmed 18.80 × 15.30 m
Krundi mõõtmed 25.80 × 23.40 m
Kõrgus 8.75 m
Kubatuur 820.75 m³
Katusekalle 22°
Katuse pindala 228 m²
Planeeringut saab alati kohandada vastavalt teie soovidele ja vajadustele.

MJ18

Projekti Tehnilised Andmed

Kasulik pind 95.36 m²
Netopind 119.24 m²
Maja mõõtmed 11.30 x 12.50 m
Kõrgus 7.52 m
Kubatuur 317.86 m³
Katusekalle 30°
Katuse pindala 193 m²
Planeeringut saab alati kohandada vastavalt teie soovidele ja vajadustele.

MJ19

Projekti Tehnilised Andmed

Kasulik pind 96.38 m²
Netopind 108.86 m²
Maja mõõtmed 13.04 x 10.54 m
Krundi mõõtmed 21.04 x 18.54 m
Kõrgus 7.00 m
Kubatuur 291.75 m³
Katusekalle 30°
Katuse pindala 195 m²
Planeeringut saab alati kohandada vastavalt teie soovidele ja vajadustele.

MJ20

Projekti Tehnilised Andmed

Kasulik pind 172.88 m²
Netopind 280.10 m²
Tehnilised ruumid 8.23 m²
Maja mõõtmed 16.84 × 18.48 m
Krundi mõõtmed 23.84 x 26.48 m
Kõrgus 9.18 m
Kubatuur 717.43 m³
Katusekalle 42°(2°)
Katuse pindala 212 m²
Planeeringut saab alati kohandada vastavalt teie soovidele ja vajadustele.

MJ21

Projekti Tehnilised Andmed

Kasulik pind 151.49 m²
Netopind 266.73 m²
Maja mõõtmed 16.44 × 15.94 m
Krundi mõõtmed 24.44 x 23.94 m
Kõrgus 8.86 m
Kubatuur 702.87 m³
Katusekalle 42°(2°)
Katuse pindala 192 m²
Planeeringut saab alati kohandada vastavalt teie soovidele ja vajadustele.

MJ22

Projekti Tehnilised Andmed

Kasulik pind 89.47 m²
Netopind 103.47 m²
Maja mõõtmed 5.59 x 12.74 m
Krundi mõõtmed 13.59 x 20.74 m
Kõrgus 8.39 m
Kubatuur 279.40 m³
Katusekalle 45°
Katuse pindala 99 m²
Planeeringut saab alati kohandada vastavalt teie soovidele ja vajadustele.

MJ23

Projekti Tehnilised Andmed

Kasulik pind 118.14 m²
Netopind 171.24 m²
Tehnilised ruumid 6.88 m²
Maja mõõtmed 8.04 × 13.49 m
Krundi mõõtmed 12.05 × 21.49 m
Kõrgus 9.79 m
Kubatuur 430.95 m³
Katusekalle 38°
Katuse pindala 118 m²
Planeeringut saab alati kohandada vastavalt teie soovidele ja vajadustele.

MJ24

Projekti Tehnilised Andmed

Kasulik pind 141.43 m²
Netopind 202.28 m²
Maja mõõtmed 14.11 × 14.59 m
Kõrgus 8.68 m
Kubatuur 529.77 m³
Katusekalle 45°(2°)
Katuse pindala 125 m²
Planeeringut saab alati kohandada vastavalt teie soovidele ja vajadustele.

MJ30

Projekti Tehnilised Andmed

Kasulik pind 76.92 m²
Netopind 90.93 m²
Maja mõõtmed 5.59 x 10.94 m
Krundi mõõtmed 13.59 x 19.44 m
Kõrgus 7.90 m
Kubatuur 236.13 m³
Katusekalle 30°
Katuse pindala 95 m²
Planeeringut saab alati kohandada vastavalt teie soovidele ja vajadustele.

MJ61

Projekti Tehnilised Andmed

Kasulik pind 146.54 m²
Netopind 165.04 m²
Maja mõõtmed 12.84 × 10.46 m
Krundi mõõtmed 20.84 × 18.46 m
Kõrgus 8.83 m
Kubatuur 437.94 m³
Katusekalle 30°
Katuse pindala 122 m²
Planeeringut saab alati kohandada vastavalt teie soovidele ja vajadustele.

MJ31

Projekti Tehnilised Andmed

Kasulik pind 72.05 m²
Netopind 95.55 m²
Maja mõõtmed 7.70 × 8.00 m
Krundi mõõtmed 15.70 × 16.00 m
Kõrgus 8.40 m
Kubatuur 230.51 m³
Katusekalle 45°
Katuse pindala 124 m²
Planeeringut saab alati kohandada vastavalt teie soovidele ja vajadustele.

MJ51

Projekti Tehnilised Andmed

Kasulik pind 103.80 m²
Netopind 131.20 m²
Maja mõõtmed 6,29 × 13.04 m
Krundi mõõtmed 14.29 × 21.04 m
Kõrgus 8.49 m
Kubatuur 367.42 m³
Katusekalle 45°
Katuse pindala 108 m²
Planeeringut saab alati kohandada vastavalt teie soovidele ja vajadustele.

MJ73

Projekti Tehnilised Andmed

Kasulik pind 135.06 m²
Netopind 204.23 m²
Maja mõõtmed 8.54 × 18.19 m
Krundi mõõtmed 16.54 × 25.54 m
Kõrgus 8.86 m
Kubatuur 517.68 m³
Katusekalle 45°
Katuse pindala 191 m²
Planeeringut saab alati kohandada vastavalt teie soovidele ja vajadustele.

MJ74

Projekti Tehnilised Andmed

Kasulik pind 116.50 m²
Netopind 153.73 m²
Maja mõõtmed 9.39 × 9.99 m
Krundi mõõtmed 17.39 × 17.99 m
Kõrgus 9.27 m
Kubatuur 380.84 m³
Katusekalle 45°
Katuse pindala 173 m²
Planeeringut saab alati kohandada vastavalt teie soovidele ja vajadustele.

MJ32

Projekti Tehnilised Andmed

Kasulik pind 93.30 m²
Netopind 109.40 m²
Maja mõõtmed 9.30 × 7.40 m
Krundi mõõtmed 16.30 × 19.90 m
Kõrgus 7.78 m
Kubatuur 245.10 m³
Katusekalle 45°
Katuse pindala 131 m²
Planeeringut saab alati kohandada vastavalt teie soovidele ja vajadustele.

MJ33

Projekti Tehnilised Andmed

Kasulik pind 72.73 m²
Netopind 91.26 m²
Maja mõõtmed 7.70 × 7.70 m
Krundi mõõtmed 15.70 × 15.70 m
Kõrgus 8.42 m
Kubatuur 228.51 m³
Katusekalle 45°
Katuse pindala 120 m²
Planeeringut saab alati kohandada vastavalt teie soovidele ja vajadustele.

MJ34

Projekti Tehnilised Andmed

Kasulik pind 81.87 m²
Netopind 98.42 m²
Maja mõõtmed 7.34 × 9.44 m
Krundi mõõtmed 15.34 × 17.44 m
Kõrgus 8.21 m
Kubatuur 241.55 m³
Katusekalle 40°
Katuse pindala 83 m²
Planeeringut saab alati kohandada vastavalt teie soovidele ja vajadustele.

MJ54

Projekti Tehnilised Andmed

Kasulik pind 176.51 m²
Netopind 270.85 m²
Maja mõõtmed 15.80 × 13.10 m
Krundi mõõtmed 22.80 × 21.10 m
Kõrgus 8.54 m
Kubatuur 718.10 m³
Katusekalle 45°
Katuse pindala 112 m²
Planeeringut saab alati kohandada vastavalt teie soovidele ja vajadustele.

MJ71

Projekti Tehnilised Andmed

Kasulik pind 130.96 m²
Netopind 214.67 m²
Maja mõõtmed 9.04 × 14.89 m
Krundi mõõtmed 17.04 × 22.89 m
Kõrgus 9.02 m
Kubatuur 579.58 m³
Katusekalle 45°
Katuse pindala 236 m²
Planeeringut saab alati kohandada vastavalt teie soovidele ja vajadustele.

MJ72

Projekti Tehnilised Andmed

Kasulik pind 88.27 m²
Netopind 121.33 m²
Maja mõõtmed 11.44 × 14.39 m
Krundi mõõtmed 19.44 × 22.39 m
Kõrgus 7.09 m
Kubatuur 339.53 m³
Katusekalle 25°
Katuse pindala 149 m²
Planeeringut saab alati kohandada vastavalt teie soovidele ja vajadustele.

MJ52

Projekti Tehnilised Andmed

Kasulik pind 136.46 m²
Netopind 288.61 m²
Maja mõõtmed 16.84 × 18.44 m
Krundi mõõtmed 23.84 × 26.44 m
Kõrgus 7.83 m
Kubatuur 792.46 m³
Katusekalle 35°(2°)
Katuse pindala 240 m²
Planeeringut saab alati kohandada vastavalt teie soovidele ja vajadustele.

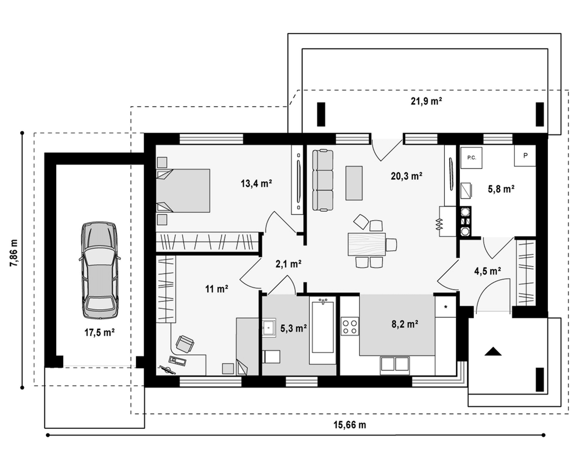
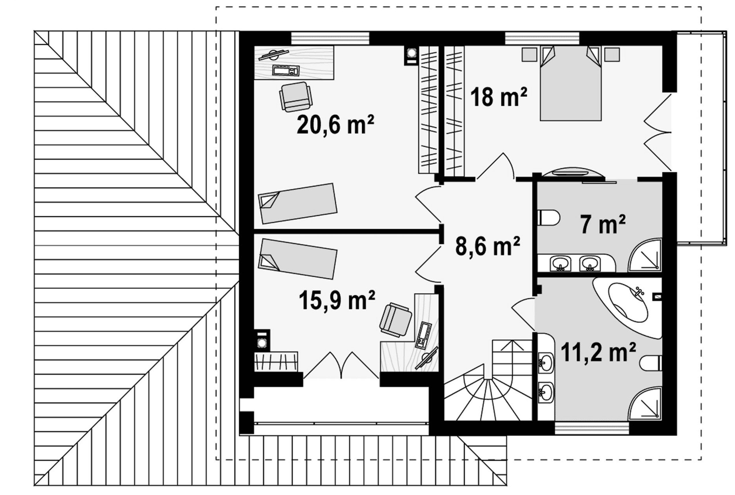
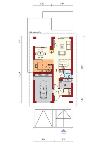
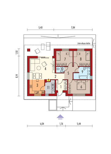
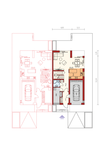
MJ40

Projekti Tehnilised Andmed

Kasulik pind 112.31 m²
Netopind 157.80 m²
Maja mõõtmed 12.59 × 20.30 m
Krundi mõõtmed 16.60 x 26.56 m
Kõrgus 6.57 m
Kubatuur 443.43 m³
Katusekalle 25°
Katuse pindala 278 m²
Planeeringut saab alati kohandada vastavalt teie soovidele ja vajadustele.

MJ53

Projekti Tehnilised Andmed

Kasulik pind 245.78 m²
Netopind 351.77 m²
Maja mõõtmed 17.62 × 18.92 m
Krundi mõõtmed 23.62 × 25.42 m
Kõrgus 10.03 m
Kubatuur 890.23 m³
Katusekalle 45°(2°)
Katuse pindala 235 m²
Planeeringut saab alati kohandada vastavalt teie soovidele ja vajadustele.

MJ41

Projekti Tehnilised Andmed

Kasulik pind 120.91 m²
Netopind 170.76 m²
Maja mõõtmed 8.04 × 13.49 m
Krundi mõõtmed 12.05 x 21.49 m
Kõrgus 9.79 m
Kubatuur 438.40 m³
Katusekalle 38°(2°)
Katuse pindala 109 m²
Planeeringut saab alati kohandada vastavalt teie soovidele ja vajadustele.

MJ44

Projekti Tehnilised Andmed

Kasulik pind 111.44 m²
Netopind 185.26 m²
Maja mõõtmed 11.40 × 11.30 m
Krundi mõõtmed 18.40 x 18.30 m
Kõrgus 8.00 m
Kubatuur 443.21 m³
Katusekalle 35°
Katuse pindala 176 m²
Planeeringut saab alati kohandada vastavalt teie soovidele ja vajadustele.

MJ50

Projekti Tehnilised Andmed

Kasulik pind 89.57 m²
Netopind 107.34 m²
Maja mõõtmed 5.59 × 12.74 m
Krundi mõõtmed 13.59 x 21.24 m
Kõrgus 8.39 m
Kubatuur 289.43 m³
Katusekalle 45°
Katuse pindala 133 m²
Planeeringut saab alati kohandada vastavalt teie soovidele ja vajadustele.

MJ42

Projekti Tehnilised Andmed

Kasulik pind 126.75 m²
Netopind 162.13 m²
Maja mõõtmed 8.55 × 12.89 m
Krundi mõõtmed 12.55 x 21.83 m
Kõrgus 9.64 m
Kubatuur 433.72 m³
Katusekalle 38°
Katuse pindala 126 m²
Planeeringut saab alati kohandada vastavalt teie soovidele ja vajadustele.

MJ43

Projekti Tehnilised Andmed

Kasulik pind 156.73 m²
Netopind 209.66 m²
Maja mõõtmed 11.10 × 12.89 m
Krundi mõõtmed 15.10 x 20.89 m
Kõrgus 9.65 m
Kubatuur 556.84 m³
Katusekalle 38°(2°)
Katuse pindala 158 m²
Planeeringut saab alati kohandada vastavalt teie soovidele ja vajadustele.

error: Content is protected !!